
首家创新型国际化十二年一贯制学校——深圳市华朗学校,一种全新的教育模式应运而生。华朗学校是由中国大型综合性投资集团倾力打造的非营利性学校,坐落于深圳市坪山高新科技片区。投资总金额达到9.7亿元,拥有9.6万平方米建筑面积,室内设计面积4万多平方米,项目施工图深化由旦旦设计(深圳)有限公司一个月内完成施工图蓝图绘制。

建筑外立面实景

中庭实景

中庭实景

后勤区实景

教室实景

项目效果图
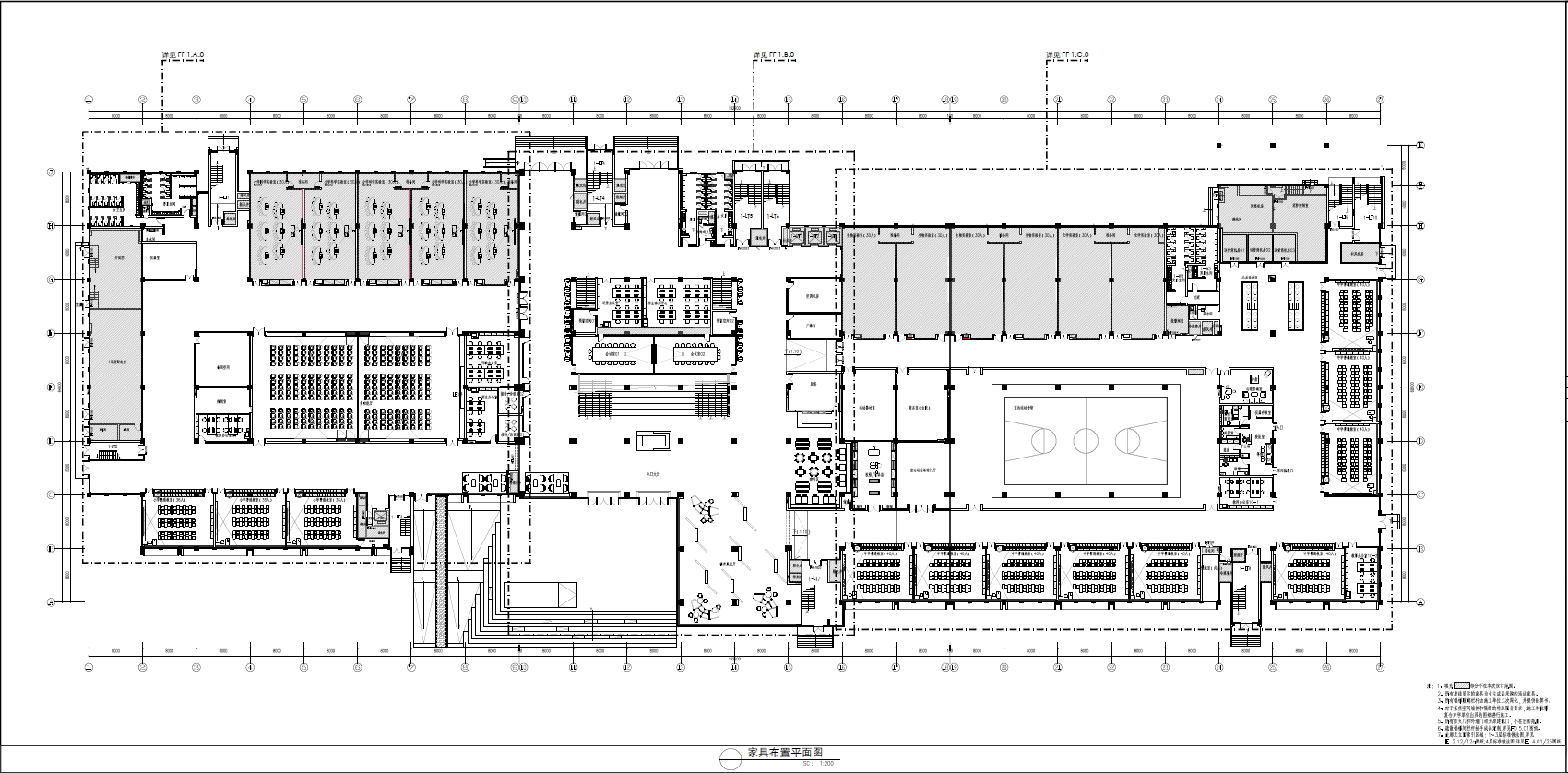
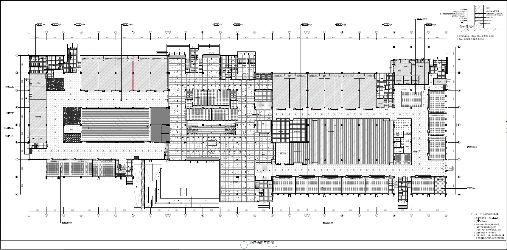
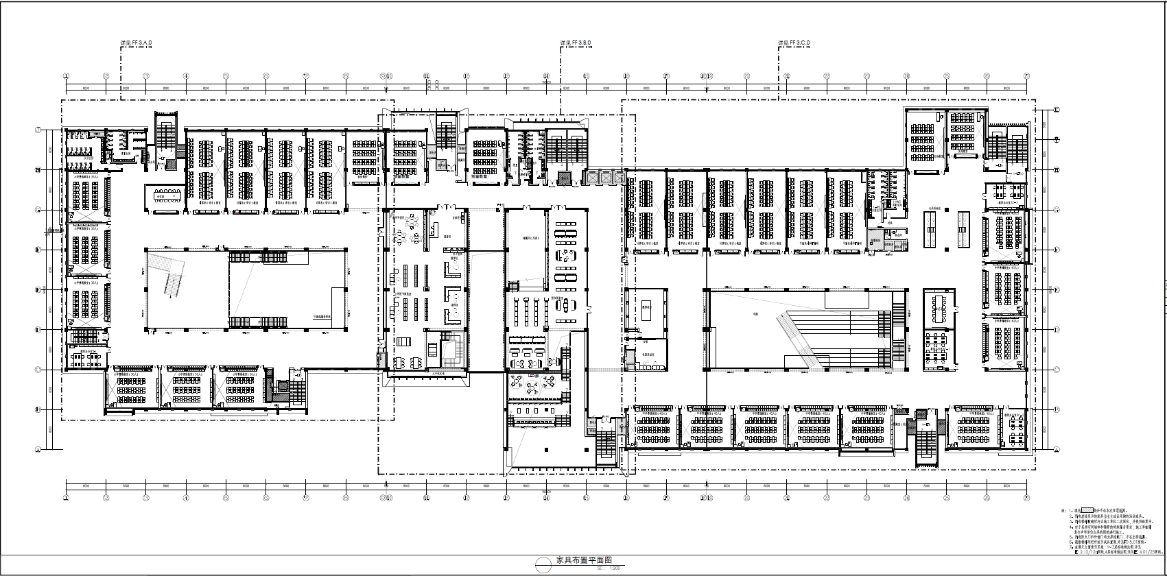
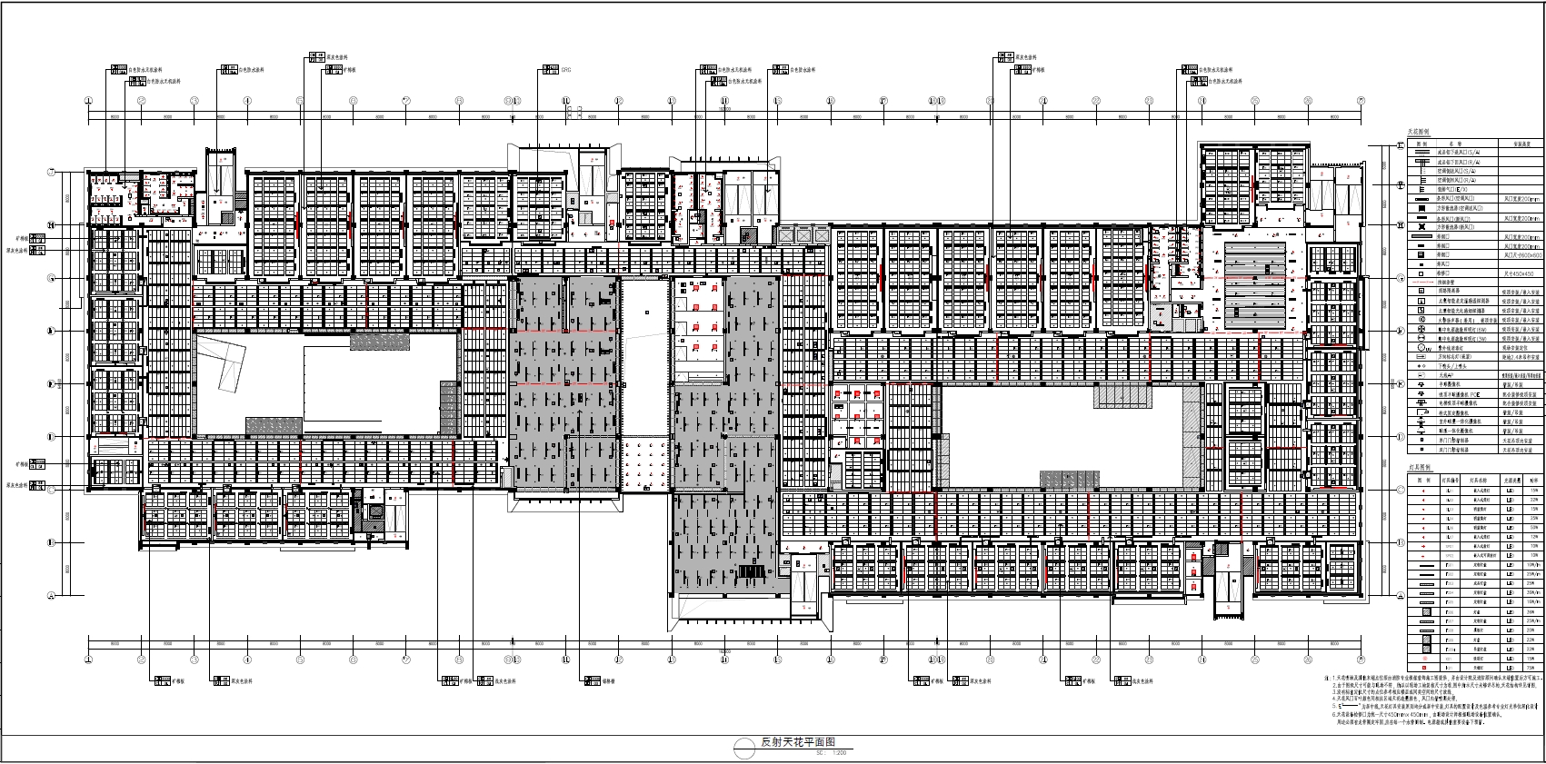
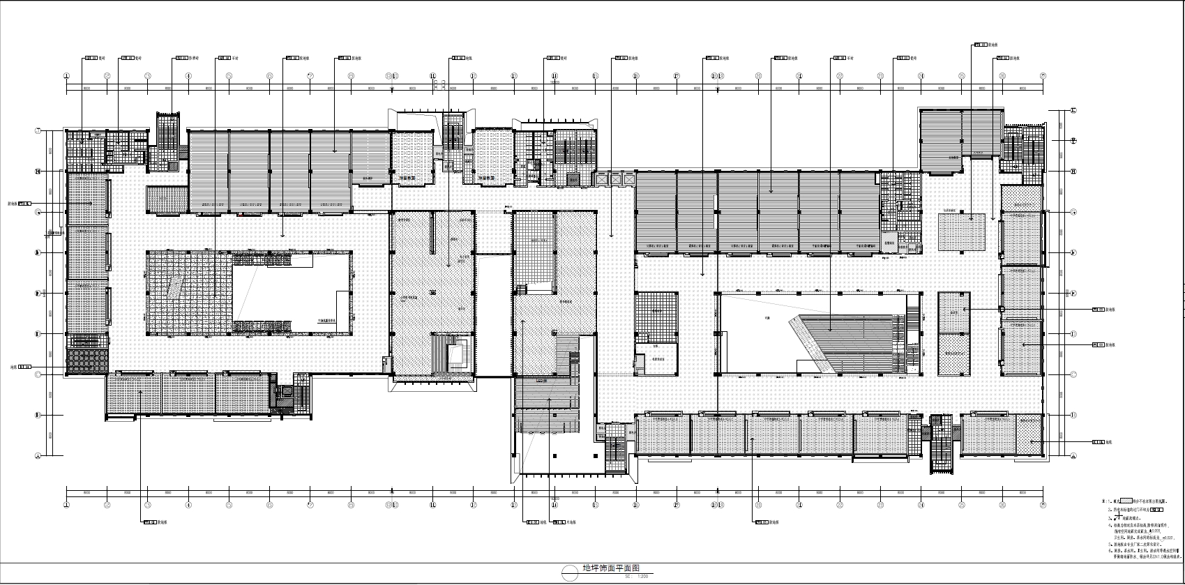
项目施工图样图展示






更多样图请加微信(ydshsy)获取
主要合作客户

服务范围:深化设计顾问,施工图深化,现场深化,驻场服务,竣工图绘制。
项目类型:顶级酒店 超大办公 商业综合体 城市更新 住宅 康养 教育文化 娱乐 零售 餐饮