
深圳市第二儿童医院项目组引入清新的自然环境、明亮的阳光、高效的流程、灵活的设计,为小朋友们建设一所充满活力与生机盎然的治愈空间,打造一所亲切的儿童医院。项目装饰施工图由旦旦设计施工图深化团队高效、按时、保质完成各阶段的图纸。
深圳市第二儿童医院荣获2023年度最佳医疗建筑奖





深圳市第二儿童医院位于深圳市龙华区民治大道与民康路交叉口东北角地块,总床位数1500床。作为一所服务范围辐射全市的三级甲等儿科综合医院,项目需要满足的不仅仅是治疗功能,更是要作为这座城市的缩影去面对患者。

医院设置1500个停车位,虽然数量相对较多,但为方便更多病患就医,医院利用场地高差形成双首层交通系统。医院入口广场利用地面风雨廊,解决门诊就医车辆通行及落客问题;地下室则与地铁5号线民治站无缝接驳,引导公共交通出行病患进入医院。此外,急救车辆和物流车辆各行其道,对就诊人员和车辆进行分导。

裙楼的外立面采用垂直绿化设计,由内侧滴灌给水,保持其生长。超过25%的建筑立面被绿色覆盖,将近两个标准足球场大小的绿色面积重新归还给城市。


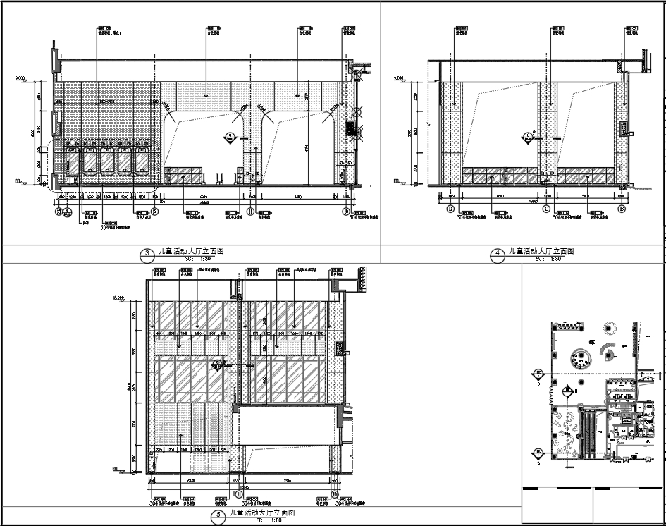
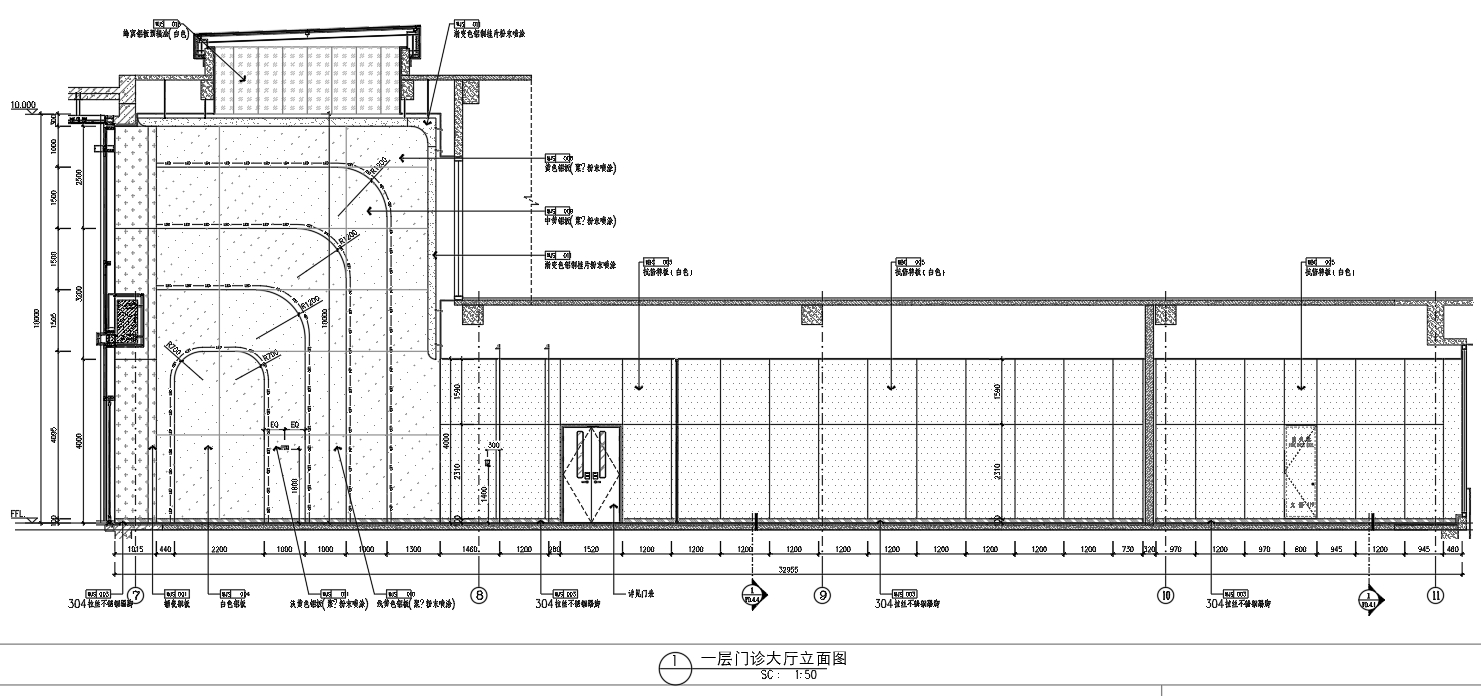
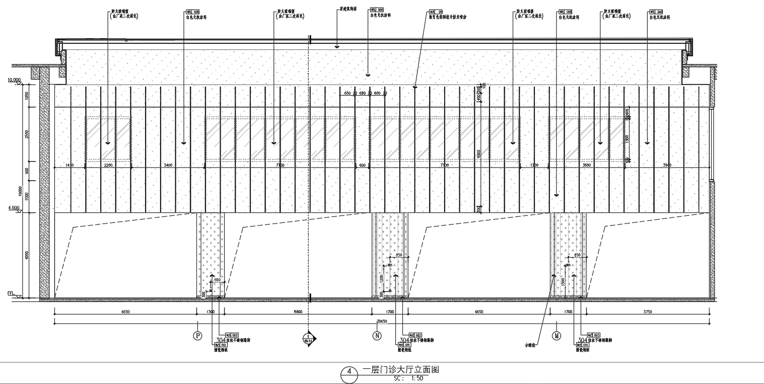
项目施工图样图展示




更多样图请加微信(ydshsy)获取
主要合作客户

服务范围:深化设计顾问,施工图深化,现场深化,驻场服务,竣工图绘制。
项目类型:顶级酒店 超大办公 商业综合体 城市更新 住宅 康养 教育文化 娱乐 零售 餐饮