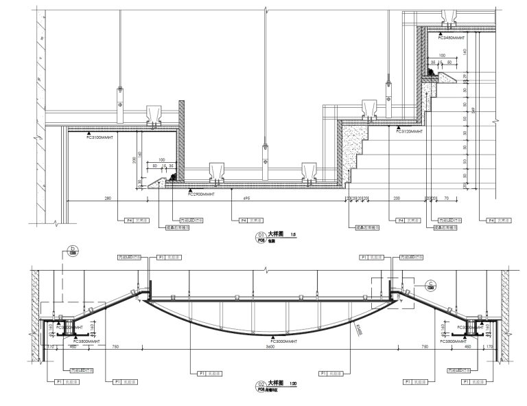
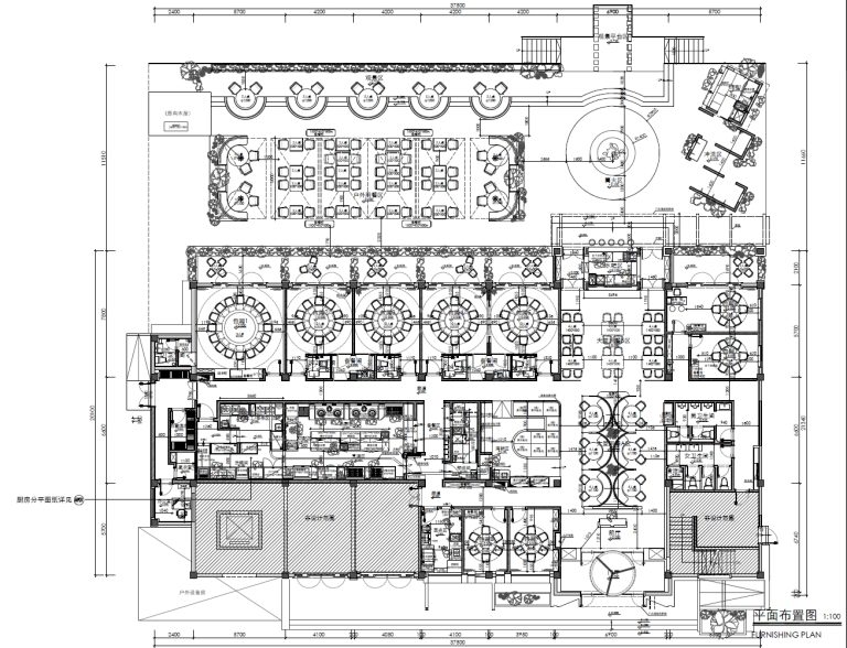
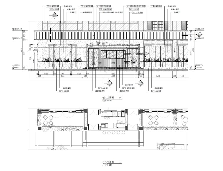
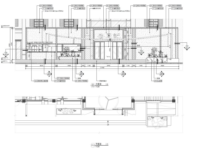
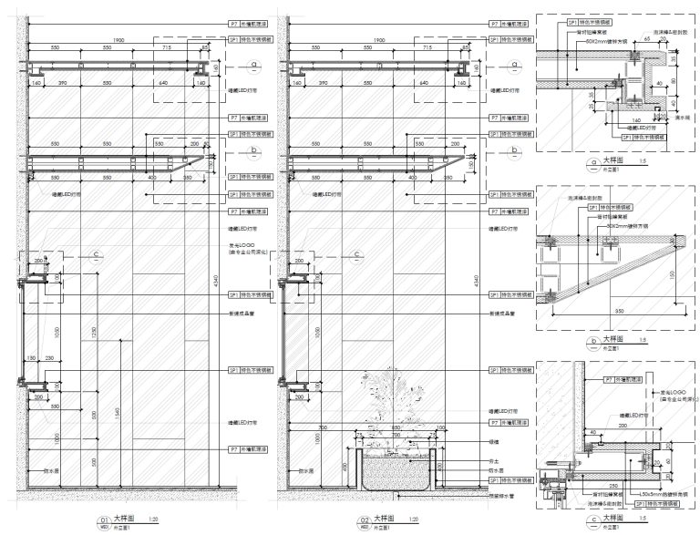
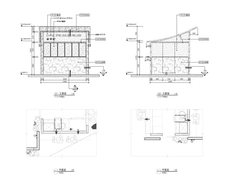
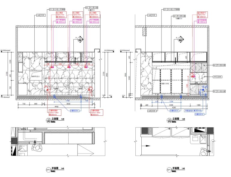
鲁凤记餐厅是一家位于烟台市莱山区海昌渔人码头风景区,面朝大海的落日体验餐厅 日落黄昏时的浪漫时光与自然肌理交织营造出如日不落的梦境 要是一个黄昏,满是风和正在落下的夕阳,如此足够我爱这破碎泥泞的人间 项目效果图 项目施工图 主要合作客户 服务范围:深化设计顾问,施工图深化,现场深化,驻场服务,竣工图绘制。 项目类型:顶级酒店 超大办公 商业综合体 城市更新 住宅 康养 教育文化 娱乐 零售 餐饮 页面 关于我们 联系我们 首页 近期文章 深圳市大数据中心-旦旦设计施工图深化 深圳悦见倾湖幼儿园-旦旦设计施工图深化 餐厅丨鲁凤记烟台渔人码头-旦旦设计施工图深化 东莞滨海湾外国语学校-旦旦设计施工图深化 东莞松山湖万象汇营销中心-旦旦设计施工图深化